Dessin industriel
Coordonnées visibles après acceptation du devis
Publié 5 mois Dessin industriel

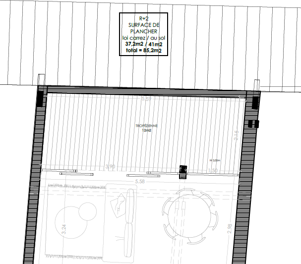
Conception d'une toiture tropézienne

Prestation terminée

Description du projet

Bonjour,
Je souhaiterais un charpentier bois ou un plan EXE pour un charpentier qui fabriquerait ma future tropézienne.
Elle fera environ 5m x 2.5m.

Merci

Résolution de la demande

Le client a trouvé une solution par ses propres moyens

Espace commentaires

Besoin de précisions avant de vous engager ?

Aucun commentaire pour le moment. Soyez le premier à poser une question !